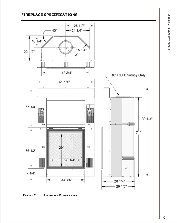
Renaissance Rumsford 1000

  • Base Price on High Efficiency Wood Fireplace $8,610.00 guillotine door and screen, Outside Air Kit

    Labor, Electrical, Permit, 10” RIS Venting & Termination $15,654.15 Approximate Pricing